



















✨ Reprezentare exclusivă a vanzatorului • 0% COMISION pentru cumpărător !!!
Duplex modern, construcție 2024, poziționat într-una dintre cele mai liniștite și verzi zone din Florești – strada Tăuțiului
Vă prezentăm spre vânzare o proprietate deosebită, ideală pentru cei care își doresc confort, spațiu generos și calitate superioară a construcției. Duplexul, edificat în 2024, impresionează prin arhitectura sa modernă, compartimentarea excelentă și atenția acordată detaliilor tehnice, oferind viitorilor proprietari o locuință durabilă și eficientă.
Caracteristici principale
Suprafață utilă: 173,36 mp
Suprafață construită desfășurată: 240,68 mp
Teren: 276 mp
Amprentă la sol: 82 mp
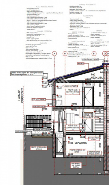
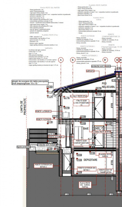
Regim de înălțime: Subsol + Parter + Etaj + Pod
Stadiu: semifinisat (fără instalație termică)
An construcție: 2024
Compartimentare inteligentă și spații generoase
Demisol – spațiu multifuncțional
Demisolul pune la dispoziție o suprafață generoasă destinată depozitării, perfectă pentru a fi transformată într-o cramă, sală de hobby, atelier sau chiar un spațiu recreativ personalizat.
Parter – zona de zi
Hol de acces
Spațiu de depozitare suplimentar
Baie
Living luminos și aerisit, cu acces direct către terasa imobilului
Bucătărie cu posibilitatea de configurare open-space sau separată
Acest nivel este gândit pentru a crea un spațiu fluid și confortabil, ideal pentru viața de familie și socializare.
Etaj – zona de noapte
3 dormitoare confortabile, cu ferestre mari
2 băi moderne
Dressing bine dimensionat
Etajul oferă intimitate și funcționalitate, fiind perfect adaptat nevoilor unei familii.
Pod
Podul este complet izolat și placat, oferind un spațiu suplimentar excelent pentru depozitare sau alte proiecte viitoare.
Calitatea construcției
Acest duplex se remarcă prin materiale de top și soluții tehnice eficiente:
Zidărie din cărămidă Cemacom 24 cm
Două straturi de polistiren + membrană
Izolație profesională la subsol
Pod complet izolat și finisat
Sistem de drenaj montat în grădină
Racord complet la toate utilitățile: apă, gaz, curent electric, canalizare
Aceste caracteristici tehnice garantează un confort termic ridicat și costuri reduse de întreținere pe termen lung.
Localizare excelentă
Proprietatea se află într-o zonă apreciată pentru liniște, aer curat și accesul rapid către zonele verzi.
1,2 km până la Parcul Poligonului – perfect pentru plimbări și activități în aer liber
4,5 km până la centrul comercial VIVO! – acces rapid la magazine, restaurante și servicii.
Vanzarea se face de pe persoana fizica, NU SE PLATESTE TVA!!!
Situatie juridica clara!